🌟✨ **Oficina de 610 m² en el Parque Empresarial de Elche – Amplia, versátil y muy luminosa** ✨🌟
📍 **Ubicación privilegiada**
En uno de los entornos empresariales más potentes de la provincia. A solo **10 min** de Elche y Alicante 🚗🌆 y **5 min** del aeropuerto ✈️.
🏢 **Espacio corporativo de gran tamaño y distribución envolvente**
Sus 610 m² ofrecen una estructura ideal para crear **varios departamentos**, zonas de trabajo diferenciadas, despachos privados o áreas de reunión. Perfecta para empresas que necesitan organización y amplitud.
🔆 **Luz natural en gran parte del recorrido**
Ventanales distribuidos alrededor de la superficie que aportan claridad, amplitud y un ambiente profesional muy agradable.
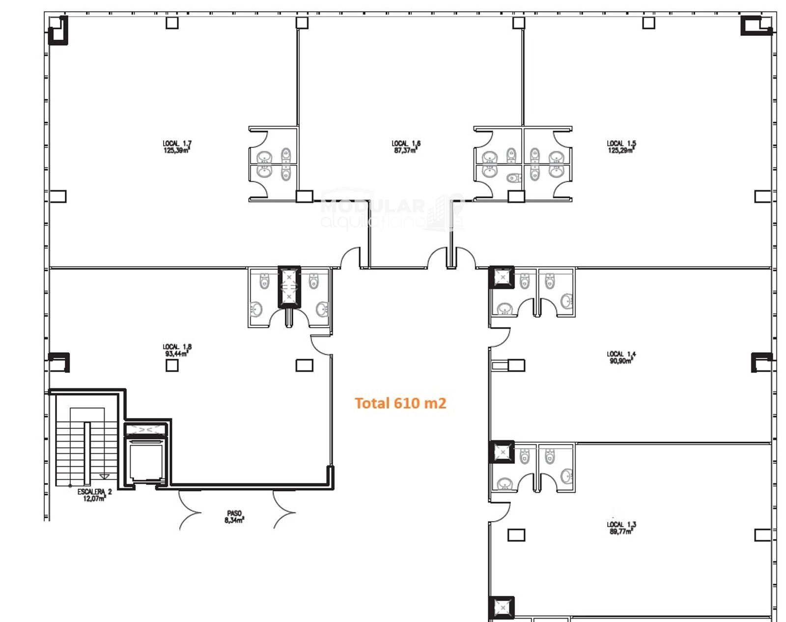
🛠️ **Distribución flexible y funcional** Puede variar la distribución y número de baños del plano que se adjunta.
• Varias estancias y espacios modulables
• Baños incluidos 🚻
• Ventanas en numerosas zonas para ventilación y luminosidad
🌬️ **Climatización integral**
Confort garantizado durante todo el año.
🅿️ **Parking disponible**
Opción de plazas adicionales a precio rentable. 🚗
💸 **Alquiler: 5.020 €**
📲 **¡Solicita más información y descubre las posibilidades de este gran espacio!**